不動産会社のイメージを変えたい。全国700店舗展開中!不動産はハウスドゥ明石藤江におまかせください!
※マウスを乗せると画像が切り替わります。
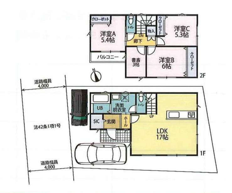
物件の特徴
主な設備
電気
上水道
公営水道
下水道
都市ガス
給湯
コンロ三口
カウンターキッチン
システムキッチン
バス
オートバス
バス1坪以上
浴室に窓
トイレ
トイレ2箇所
温水洗浄便座
高機能トイレ
室内洗濯機置場
洗髪洗面化粧台
洗面所独立
省エネ給湯器
モニタ付インターホン
LDK15畳以上
複層ガラス
クローゼット
全居室収納
シューズインクローク
主な特徴
2沿線利用可
海に近い
閑静な住宅街
周辺交通量少なめ
通風良好
陽当り良好
2階建
フラット35Sに対応
【ハウスドゥ明石藤江】おすすめ
□徒歩約1分に公園2カ所
□海に近い物件
現地へ行って陽当りや周辺環境・街並みを確かめよう!
お気軽にお問合せください!
江井島小学校 約1400m(徒歩約18分)
江井島中学校 約2000m(徒歩約25分)
【ハウスドゥ明石藤江】ご来店サービス♪
♪お客様を駅まで送迎いたします!JR「西明石」「大久保」駅 山陽電鉄線もご相談ください♪
♪ご来店のお客様へウェルカムドリンクのご提供♪ゆっくりと店内でご相談ください♪
どんな小さな事でもご相談ください!エージェントが全力でお手伝い・サポートさせていただきます!
【ハウスドゥ明石藤江】はお客様のより近くにある安心・便利・信頼されるお店づくりを展開中!
【ハウスドゥ明石藤江】はすべての物件情報を公開中!
お問合せはこちらまで →0120-077-712
物件概要
| 価格 | 3,280万円 | 間取り | 3LDK+S |
|---|---|---|---|
| 物件種別 | 新築一戸建て | ||
| 所在地 | 兵庫県明石市大久保町江井島 | ||
| アクセス | 山陽電鉄本線『江井ヶ島』 徒歩13分 (約1000m) 山陽電鉄本線『中八木』 徒歩14分 (約1100m) JR山陽本線『大久保』 徒歩19分 (約1500m) |
||
| 建物面積 | 公88.8㎡ | 駐車場 | あり 普通:2台 |
| 築年月 | 2026年(令和8年)04月予定 | 建築確認 | 第HK25-41232号 |
| 建物構造 | 木造 2階建 | 工法 | |
| 主要採光 | 南西向 | バルコニー | |
| 保証・評価 | |||
| 土地面積 | 公94.04㎡(28.44坪) | 接道 | 北西側(公道)幅 約4.0m 間口 約7.20m |
| 私道 | セットバック | ||
| 地目 | 宅地 | 地勢 | |
| 権利 | 所有権 |
||
| 都市計画 | 市街化区域 |
用途地域 | 1種住居 |
| 建ぺい/容積率 | 60% / 160% | 土地国土法 | |
| 許可番号 | 建築基準法 | ||
| 法令制限 | 法22条区域 | ||
| 小学区 | 江井島小学校 徒歩18分 (約1400m) | 中学区 | 江井島中学校 徒歩25分 (約2000m) |
| 現況 | 建築中 | 引渡 | 期日指定:2026年04月 |
| その他費用 | |||
| 周辺環境 | 明石森田郵便局 徒歩6分 (約460m) 八木保育所 徒歩6分 (約440m) ファミリーマート明石八木店 徒歩6分 (約450m) えいの里保育園 徒歩10分 (約740m) マルアイ 大久保店 徒歩11分 (約860m) 大西脳神経外科病院 徒歩15分 (約1160m) 江井ヶ島駅 徒歩12分 (約960m) ゆめのもり保育園 徒歩13分 (約1000m) セブンイレブン明石江井ヶ島駅前店 徒歩13分 (約1010m) マルアイ中八木店 徒歩13分 (約1010m) |
||
| 備考 | □お車2台駐車可能(車種による) □書斎付きのお家 □徒歩約1分に公園2カ所 □海に近い物件 |
||
| 物件番号 | 4663411 | 取引態様 | 媒介 |






























担当エージェント:藤田 敏雄
納得のお住まい購入をお手伝い。より多くの住まい情報をお客様に迅速にお届けし、お住まいをご自由にお選びいただける環境を作り出すよう最善を尽くします。お客様の10年後、20年後の将来を考えたお住まいのご提案を目指します。お住まいのご購入が終わった後も、末永いお付き合いをお約束し誠意を持って対応させていただくことを誓います。全国のネットワークを通じ、情報収集し、お客様に最良のお住まいをご提案いたします。